Individual House Interior Design for Mr. Shubham Sood

Individual House Interior Design for Mr. Shubham Sood

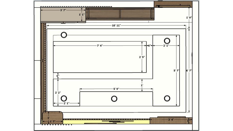
HOUSE

Description:

Lexangrit Design Studio had the pleasure of designing the interiors of Shubham Sood's individual house in Kangra, Himachal Pradesh. Our team focused on creating a warm and inviting home that blends modern comforts with the natural beauty of its surroundings. We designed each room with careful attention to detail, ensuring a cohesive and stylish look throughout the house. The interiors feature a blend of contemporary design elements and traditional Himachali touches, reflecting Mr. Sood's personal taste and the region's heritage. From the living areas to the bedrooms and kitchen, every space was crafted to provide comfort, functionality, and aesthetic appeal. The result is a beautifully designed home that offers a perfect retreat for Mr. Sood and his family, harmonizing with the serene landscape of Kangra.

Contact Us


Popular Categories


VILLA

VILLA

OFFICE

OFFICE

FALSE_CEILINGS

FALSE_CEILINGS

BEDROOM

BEDROOM

BOUTIQUE

BOUTIQUE

KITCHEN

KITCHEN

1BHK

1BHK

3BHK

3BHK

2BHK

2BHK

HOUSE

HOUSE

STUDIO

STUDIO

SHOP

SHOP

RESTAURANT

RESTAURANT

BATHROOM

BATHROOM