Lexangrit
Home
Full Project
Portfolios
Contact
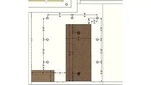
Dinning area false ceiling view with two fan 2d dimensions
Download Image
View full project
living room with l shaped sofa set with divan an single chair and 1 set 2 unit marble top with ss frame cofee table, from living to dinning sperator made of wooden arch design, left wall has wpc wooden louvers panel with a shelf to keep decorative items and full height cuirtains next to the panel
6seatr dinning area and fluted glass crockery unit
Dinning area showing window view and decorative wall paneling
Seating area to dinning area view
Dinning area false ceiling view with two fan
Dinning area false ceiling view with two fan 2d dimensions
Dinning
Dinning room top view planning, it has a 6 seater marble dinning table with peach coloured padded chairs, on the top 2 chairs are places infront of kitchen breakfast counter table, in the right a had wash area with fluted glass shutter is planed, on the left a CNC cutting mandir is placed and leaving is connecting same side
dinning hall golden strip wall design
dinning room view from kitchen
dinning wall design with console table and dinning table
dinning room design
main door in dinning room
dinning room design
dinning false ceiling
Dinning area with decorative wallpaper with profile light design
Beautiful and luxury dinning with 6 seater table chair
6 seater dinning table design
Design of dinning with below stairs
Dinning false ceiling with glass and full height light
Living room to dinning and puja view
dinning room where we can see a hand wash unit with round mirror and full height vanity unit with black granite and matt black bowl sink or besin design, a dinning tavle with white quartz and black powdwer coated iron stand, and brakefast counter table of a kitchen having black granite slab
kitchen and dinning design
kitchen and dinning table design
dinning design with dinning table and puja unit
dinning room design
dinning room design
dinning room design with hand wash dinnig table and kitchen counter table
dinning room false ceiling design
dinning table
Folding dinning table with crocery
Dinning plain false ceiling with profile light
Living with dinning design
Dinning with 6 seater dinning table and crockery
Dinning hidden door and fridge
From dinning to kitchen
Dinning and kitchen architechtural wooden ceiling
it is a side of a living room design having a tv unit with smt or umt black marbel laminated paneling in the back og the tv and wall is designed in a groove cutting cemented textured wall, and left side a matt wooden laminated vertical storage unit having open and closed units, and below the tv a matt wooden laminated floating vanity unit. in the right a golden ss fluted glass separator, separating living and dinning
Dinning roon with glass wall
Black marble dinning table
Dinning false ceiling
Foyer wall design with cemented wall panel or hdhmr CNC cutting with duco or enamel spray pain, a seating in 2ft and seating back design with wooden louvers, on the right side storage area is placed and in the left dinning and a wooden separator separating living room is visible
Tv unit on the left,long leather sofa on right with centre table seperate which separates foyer and living & tv wall which seperates living & dinning
dinning pooja unit with hdhmr or plywood with uv marble finish laminate, shiva sculpture or murti tracing illuminating in the centre with minimal storage, dining accent wall on right, living area on the left,tv unit which seperates living and dining.
Contact
Location:
Ward 2, Pardankuni, Dankuni coal complex, Hooghly
Email:
info[at]lexangrit.com
Call:
+91 82402 20863
Your project type
Residential
Commercial
Your property type
3BHK
2BHK
1BHK
Others
Do you have floor plan
Yes
No
No idea
Looking for
Only interior design
Interior Design and decoration
Get a quote