Study Unit  

Modern Bedroom Study Unit Design with White SMT Laminate Finish

Stylish, Functional and Elegantly Minimal—Perfect for Compact Bedrooms


Lexangrit Editorial Team
March 7, 2026


A thoughtfully designed study unit in bedroom adds both function and sophistication to your space. This design features a clean white SMT laminated finish, offering a bright, modern appeal while maintaining durability and ease of maintenance. Ideal for compact homes, this bedroom study unit design focuses on space optimization and visual harmony.

This featured image is a part Budget-Friendly Minimalistic-Modern House Design for Dhaval Lodha in Himatnagar, Gujarat

Plan Your Interior Budget

Wondering what your Study Unit interior will cost? Get an instant estimate with our free Interior Cost Calculator — no sign-up needed.

Design Overview

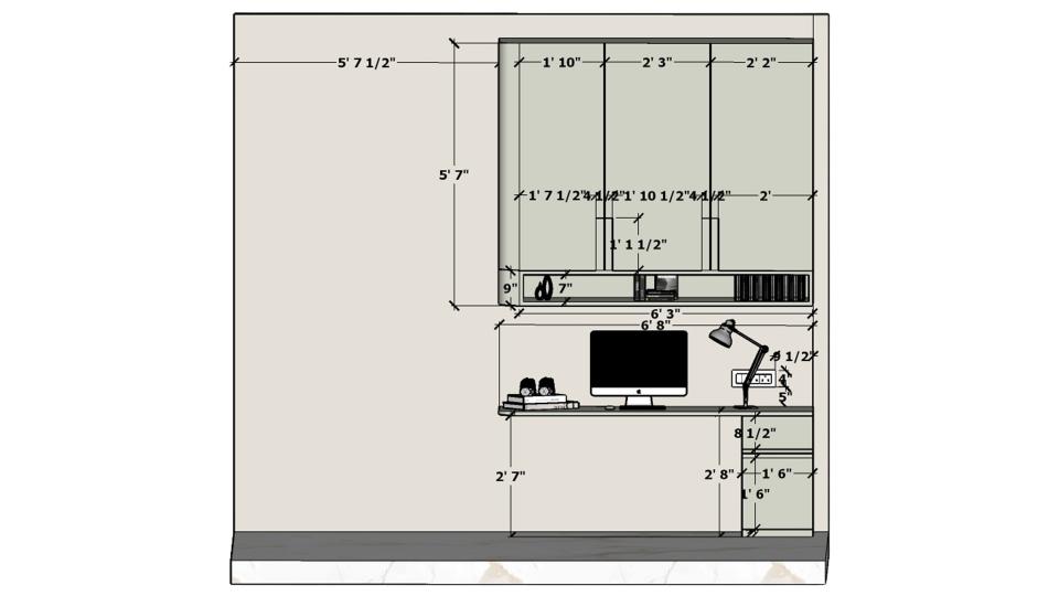
On the other side of the bedroom, a beautifully crafted study unit design enhances the room’s practicality without overpowering its aesthetics. The wall unit consists of a horizontal open shelf and a swing shutter cabinet, perfect for storing books, files, or décor pieces. Above, a handless cabinet heightened to the ceiling makes full use of vertical space — a smart approach often seen in small study unit design layouts.

The white SMT / UMT laminate finish adds a glossy, seamless look that reflects light and creates an airy atmosphere. Every element, from the handleless design to the proportionate shelving, works together to achieve a sleek, clutter-free setup that fits perfectly in a modern study unit design in bedroom.

Design Elements & Functionality

This bedroom study unit design strikes a fine balance between aesthetics and utility. The horizontal open shelf is ideal for displaying everyday essentials or personal accessories, while the swing shutter neatly conceals items to keep the area organized.

The extended handless cabinet not only offers generous storage but also gives a continuous, unified look up to the ceiling. This vertical design technique is especially effective in small study unit design, where every inch of storage counts. The workspace surface provides enough room for studying, reading, or working on a laptop, making it ideal for both students and professionals.

Color & Material Choice

The use of white SMT laminate gives the unit a refined and modern feel. Its smooth surface is easy to clean and maintain, while the subtle sheen helps brighten up the entire room. The neutral color blends effortlessly with different bedroom styles — from minimal to contemporary — ensuring that the study unit in bedroom complements the overall décor.

Practical Advantages

This study unit design in bedroom is not only stylish but highly functional. It provides dedicated space for focused work without occupying much area. The ergonomic height, closed storage, and smart shelving make it perfect for multitasking and maintaining an organized environment.

Conclusion

If you’re planning to include a study unit design in your bedroom, this setup is the perfect blend of elegance and efficiency. The white SMT laminated study unit showcases how a simple yet well-planned layout can elevate your interiors. Compact, clean, and practical — this small study unit design proves that great design doesn’t always need large spaces, just thoughtful execution.

Relevant links

Classic bedroom wardrobe design featuring a white laminate wardrobe with CNC-cut shutters and a central vertical groove detail on each shutter, paired with a textured accent wall and decorative art on the left side.
A classic bedroom wardrobe design showcasing white laminate CNC-cut shutters with vertical groove detailing, complemented by a textured painted wall and an artistic accent for a refined guest bedroom interior.
Guest bedroom with pista colored french wardrobe shutter dimensions
Guest bedroom pista colored study unit with drawers and open unit and upper cabinet dimensions
Guest bedroom full height curtain view and ac on pelmet


Contact